Gość dzidch Opublikowano 14 Maja 2022 Udostępnij Opublikowano 14 Maja 2022 Jak w temacie Corsa D światło wstecznego zapaliło się na stałe. Czujnik w skrzyni ok. Kabel od strony czujnika nie ma zwarcia. Gdzie szukać problemu ??   Cytuj Odnośnik do komentarza https://forum.opel24.com/topic/94574-corsa-d-van-problem-z-%C5%9Bwit%C5%82em-wstecznego/ Udostępnij na innych stronach Więcej opcji udostępniania...
Marcin 83 Opublikowano 14 Maja 2022 Udostępnij Opublikowano 14 Maja 2022 Jak odłaczysz czujnik to nadal świeci ?   Cytuj Odnośnik do komentarza https://forum.opel24.com/topic/94574-corsa-d-van-problem-z-%C5%9Bwit%C5%82em-wstecznego/#findComment-750324 Udostępnij na innych stronach Więcej opcji udostępniania...
Gość dzidch Opublikowano 14 Maja 2022 Udostępnij Opublikowano 14 Maja 2022 2 godziny temu, Marcin 83 napisał: Jak odłaczysz czujnik to nadal świeci ? Tak nadal świeci. Inna sprawa że na google znalazlem info na jakiej wtyczce jest sygnał wtyczka B 94 pinowa ale nie mogę jej namierzyć w aucie   Cytuj Odnośnik do komentarza https://forum.opel24.com/topic/94574-corsa-d-van-problem-z-%C5%9Bwit%C5%82em-wstecznego/#findComment-750329 Udostępnij na innych stronach Więcej opcji udostępniania...
Marcin 83 Opublikowano 14 Maja 2022 Udostępnij Opublikowano 14 Maja 2022 To musi być gdzieś zwarcie na wiązce lub w kostce. Miernikiem możesz sprawdzic. Co do rozpiski kostek to zapewne Adam jak będzie to ogarnie.   Cytuj Odnośnik do komentarza https://forum.opel24.com/topic/94574-corsa-d-van-problem-z-%C5%9Bwit%C5%82em-wstecznego/#findComment-750330 Udostępnij na innych stronach Więcej opcji udostępniania...
Gość dzidch Opublikowano 14 Maja 2022 Udostępnij Opublikowano 14 Maja 2022 tutaj Schemat elektryczny są schematy ale nie mogę namierzyć takich wtyczek   Cytuj Odnośnik do komentarza https://forum.opel24.com/topic/94574-corsa-d-van-problem-z-%C5%9Bwit%C5%82em-wstecznego/#findComment-750331 Udostępnij na innych stronach Więcej opcji udostępniania...
Marcin 83 Opublikowano 14 Maja 2022 Udostępnij Opublikowano 14 Maja 2022 Sądzę że Adam da radę   Cytuj Odnośnik do komentarza https://forum.opel24.com/topic/94574-corsa-d-van-problem-z-%C5%9Bwit%C5%82em-wstecznego/#findComment-750333 Udostępnij na innych stronach Więcej opcji udostępniania...
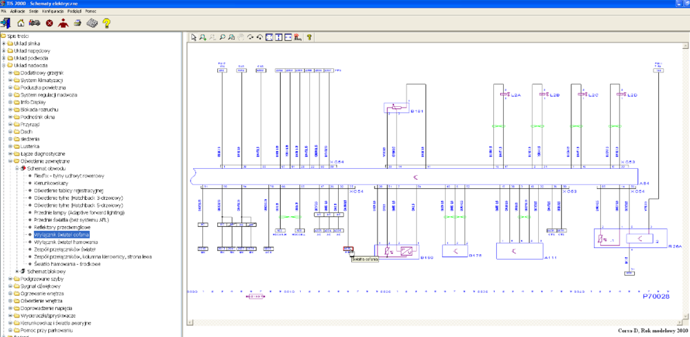
bogoes Opublikowano 14 Maja 2022 Udostępnij Opublikowano 14 Maja 2022 Godzinę temu, dzidch napisał: tutaj Schemat elektryczny są schematy ale nie mogę namierzyć takich wtyczek Ściągnij sobie TIS2000 v116.0D z popularnego "gryzonia" i tam masz dokładne schematy interaktywne z odnośnikami, rysunkami, trasami wiązek, widokami, lokalizacjami i rozpiskami złączek, przyda Ci się teraz i w przyszłości... i uzupełnij profil, bo nawet nie wiadomo, czy przedlift, czy polift, jaki silnik, bo żeby prześledzić schemat połączeń.... poniżej przykładowe screeny z TISa w Twoim temacie, choć nie w pełni oddająca wszystko. Sam widzisz, że żeby dobrze i kompleksowo nakreślić cały schemat elektryczny (+wiązki+złącza+opisy przewodów i tras) i informację o procedurze w diagnozowaniu problemu, to pewnie przynajmniej 10razy tyle screenów trzeba byłoby wkleić. Te poniżej dotyczą modelu corsy 3D Z13DTE (rocznik 2010). Ze swej strony myślę, że prawdopodobnie jest zwarcie do masy (przetarty przewód) na trasie od wyłącznika świateł cofania do sterownika silnika, wyłącznik zwiera i podaje masę na sterownik.   1 Cytuj Odnośnik do komentarza https://forum.opel24.com/topic/94574-corsa-d-van-problem-z-%C5%9Bwit%C5%82em-wstecznego/#findComment-750336 Udostępnij na innych stronach Więcej opcji udostępniania...
Gość dzidch Opublikowano 14 Maja 2022 Udostępnij Opublikowano 14 Maja 2022 Super dzięki. Program już pobieram. Jutro będę kminił .   Cytuj Odnośnik do komentarza https://forum.opel24.com/topic/94574-corsa-d-van-problem-z-%C5%9Bwit%C5%82em-wstecznego/#findComment-750343 Udostępnij na innych stronach Więcej opcji udostępniania...
Gość dzidch Opublikowano 15 Maja 2022 Udostępnij Opublikowano 15 Maja 2022 Z tego co wywnioskowałem to sygnał z włącznika świateł cofania idzie do ecu i z niego już po magistrali do zestawu wskaźników i tam jest sterowanie żarówką   Cytuj Odnośnik do komentarza https://forum.opel24.com/topic/94574-corsa-d-van-problem-z-%C5%9Bwit%C5%82em-wstecznego/#findComment-750361 Udostępnij na innych stronach Więcej opcji udostępniania...
bogoes Opublikowano 15 Maja 2022 Udostępnij Opublikowano 15 Maja 2022 Ja na początek odpiąłbym wtyczkę od ECU i sprawdzałbym na odpowiednim pinie (nie wiem jaki silnik), czy jest przejście do masy na włączonym i wyłączonym wstecznym... to sprawdzi dzialanie czujnika i przewód od czujnika do ECU. 1 Cytuj Odnośnik do komentarza https://forum.opel24.com/topic/94574-corsa-d-van-problem-z-%C5%9Bwit%C5%82em-wstecznego/#findComment-750364 Udostępnij na innych stronach Więcej opcji udostępniania...
Rekomendowane odpowiedzi
Dołącz do dyskusji
Możesz dodać zawartość już teraz a zarejestrować się później. Jeśli posiadasz już konto, zaloguj się aby dodać zawartość za jego pomocą.